NAVE INDUSTRIAL 2080 M2 EN CASTELLI PARK MÉRIDA
- $229,000.00
NAVE INDUSTRIAL 2080 M2 EN CASTELLI PARK MÉRIDA
- $229,000.00
Descripción
Ideal para almacenamiento, producción, CEDIS o centro de distribución.
UBICADA DENTRO DEL PARQUE INDUSTRIAL SUSTENTABLE CON LA MEJOR UBICACIÓN EN EL SURESTE DE MÉXICO.
Parque estratégicamente ubicado en el corredor industrial de mayor crecimiento, entre el Periférico y el nuevo Anillo Vial Metropolitano de Mérida, Yucatán; con conexión estratégica a los principales nodos logísticos del sureste: Puerto de Progreso, Tren Maya de carga y conexiones terrestres, a tan solo 15 minutos del Aeropuerto Internacional de Mérida.
EN CASTELLI PARK ENCONTRARÁS NAVES INDUSTRIALES CON TERRENO, MUROS, ANDENES, PATIOS, ESTACIONAMIENTOS Y SERVICIOS TOTALMENTE INDEPENDIENTES.
CERTEZA JURÍDICA:
1.-Uso de suelo industrial no contaminante
2.-Escritura pública
3.-Manifestación de impacto ambiental
4.-Autorización CONAGUA
SOLUCIONES, CASTELLI PARK:
1.-Diseñamos, planeamos y proyectamos espacios a la medida de tus necesidades.
2.-En Castelli Park encontrarás un sinfín de soluciones: desde la correcta selección del espacio, la planeación de tu layout de procesos, hasta el acompañamiento durante la etapa de construcción, adecuación y puesta en marcha de tu proyecto.
3.-Una vez instalados, nuestro equipo de profesionales te acompaña en el día a día, facilitandote las necesidades cotidianas, servicios municipales, trámites y mantenimientos, cuidando cada detalle para que la operación de tu empresa funcione como lo has planeado.
CARACTERÍSTICAS PROPIAS DE LA NAVE:
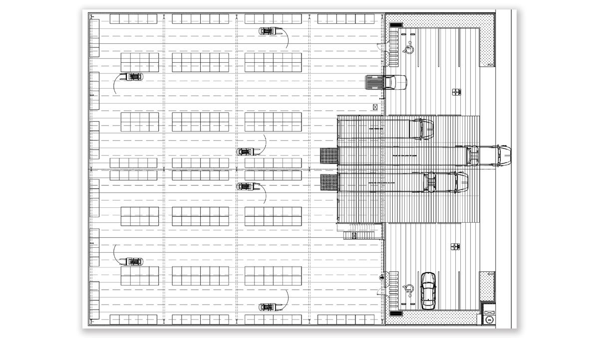
1.- 2,080 m² de terreno en propiedad
2.- 1,518 m² de área techada, con hasta 11 m de altura
3.- 562 m² distribuidos entre andenes, área de maniobras, estacionamientos
4.- Servicios y áreas verdes propias de la nave
5.- Mezzanine de 100 m², ideal para construcción de oficinas, sala de capacitación, comedor o almacén.
6.- Energía en media tensión trifásica, suministrada por CFE, según proyecto
7.- Dos plantas de tratamiento propias, en cumplimiento con la normatividad ambiental
8.- Espacios para estacionamiento configurables según necesidades
9.- Pisos de alta resistencia, con planimetría adecuada para distintos tipos de montacargas
10.- Preparaciones para rampas mecánicas o hidráulicas y mini dock en andenes de carga y descarga
11.- Cortinas metálicas enrollables con preparación para automatización
12.- Pozos de infiltración para recarga de mantos acuíferos con recuperación de agua pluvial en cumplimiento a la norma ambiental.
13.- Preparaciones para instalación eléctrica subterránea
14.- Preparaciones para conexión de fibra óptica (disponible en el parque)
15.- Dos cisternas propias de la nave
16.- Adecuaciones para iluminación LED
17.- Preparaciones para crecimiento del área útil de almacenamiento y colocación de cerca metálica en áreas exteriores
18.- Preparaciones para construcción y adecuación de oficinas, comedor y núcleos sanitarios en uno, dos o tres niveles al interior de la nave.
19.- Estructura metálica y techumbre de la nave calculados para recibir a instalar paneles solares.
AMENIDADES, CASTELLI PARK:
1.- Urbanización de primer nivel, incorporando tecnologías sustentables en armonía con el medio ambiente
2.- Área de comedor para personal operativo (en construcción)
3.- Trailer park
4.- Áreas para estacionamientos
5.- Hotel para personal operativo
6.- Centro de negocios (en construcción)
7.- Control de acceso 24/7, los 365 días del año
8.- CCTV
9.- Iluminación urbana solar
LLÁMANOS Y DESCUBRE LAS VENTAJAS DE ESTAR DENTRO DE UN PARQUE INDUSTRIAL RODEADO DE EMPRESAS DE PRIMER NIVEL.
Dirección
Abrir en Google Maps-
Dirección: Complejo industrial Castelli Park 1, Tablaje 7010, Carretera Mérida – Tetiz, Km. 4
-
Ciudad: Mérida
-
Estado: Yucatán
-
Zip/Postal Code: 97357
-
País: México
Detalles
Actualizado en febrero 24, 2026 En 12:13 pm-
ID de la propiedad 111
-
Precio $229,000.00
-
Tamaño de la propiedad 1,518 m2 m²
-
Área de terreno 2,080 m2 m²
-
Tipo de propiedad Nave industrial RENTA
-
Estado de propiedad En renta
Similares
NAVE INDUSTRIAL 1170 M2 EN CASTELLI PARK MÉRIDA
- $110,000.00
NAVE INDUSTRIAL 974 M2 EN CASTELLI PARK MÉRIDA
- $90,000.00
NAVE INDUSTRIAL 1020 M2 EN CASTELLI PARK MÉRIDA
- $109,000.00
NAVE INDUSTRIAL 2080 M2 EN CASTELLI PARK MÉRIDA
- $229,000.00
- iaodnaki lqoapfbnf

























