8
  • Tipo de propiedad
  • Nave industrial RENTA
  • 137
  • ID de la propiedad
  • 560 m2 m²
  • Habitación

Renta Nave Industrial 800 m² en Castelli Park Mérida, Yucatán

  • $74,500.00

Descripción

Nave industrial en Mérida disponible para renta, lista para operar en diciembre con todos los permisos en regla. Ubicada en Castelli Park, el parque industrial con acceso inmediato al Periférico y al Anillo Vial Metropolitano, además de una conexión estratégica con los principales nodos logísticos del sureste: Puerto Progreso, Tren Maya y Aeropuerto Internacional de Mérida.

Nave configurable con posibilidad de integrar oficinas ejecutivas, sistemas contra incendio y CCTV, ideal para uso de almacenamiento, distribución o logística.

Características de la nave:

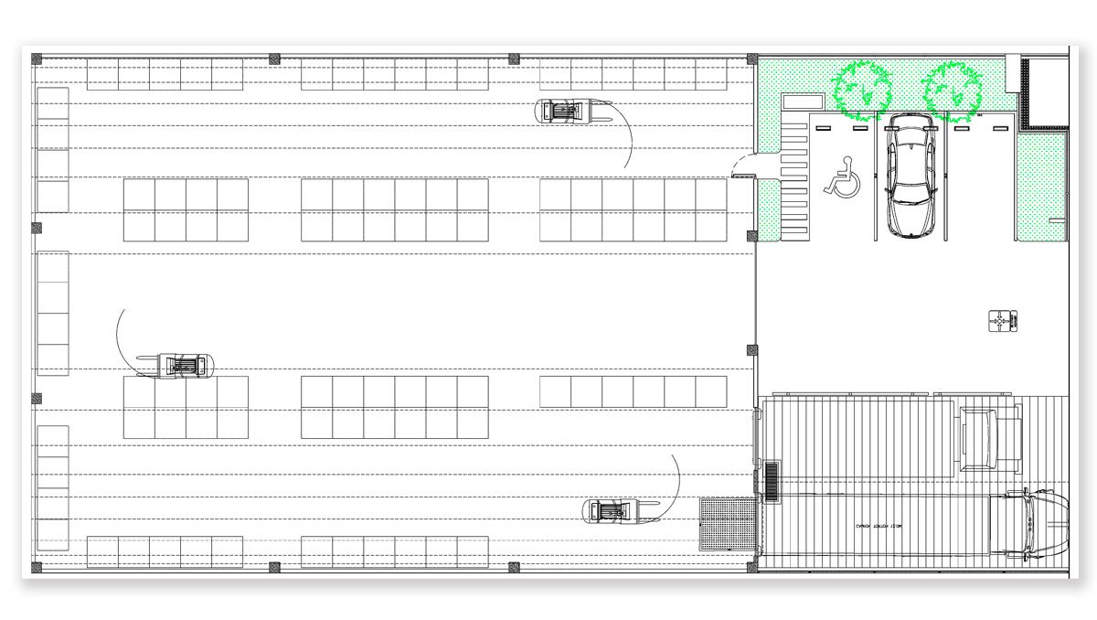
  • 800 m2 terreno privado
  • 560 m2 techados
  • 240 m2 patios de maniobras y andenes
  • Altura máxima 10m
  • 3 cajones de estacionamiento independientes para vehículos
  • 2 andenes para carga y descarga independientes en cada nave
  • Rampa para vehículos ligeros y pesados
  • Pisos MR de alta resistencia
  • Servicios independientes por nave (agua, acometida eléctrica en tres fases, fibra óptica)
  • Patios de maniobras con posibilidad de cerca perimetral
  • Oficinas con comedor y núcleos sanitarios (opcional)
  • Cortinas enrollables mecánicas

Beneficios del parque:

  • Ecotecnologías
  • Urbanización de primer nivel
  • Control de acceso
  • Vigilancia 24/7
  • Vialidades con asfalto
  • Iluminación urbana solar
  • Drenaje pluvial (Recarga de mantos acuíferos)
  • Fibra óptica
  • Red de agua potable
  • Hotel operativo

En Castelli Park no solo adquieres una inversión estratégica, sino un modelo integral de soluciones ilimitadas.

Contáctanos hoy y agenda tu visita.

  • Dirección: Complejo industrial Castelli Park 1, Tablaje 7010, Carretera Mérida – Tetiz, Km. 4
  • Ciudad: Mérida
  • Estado: Yucatán
  • Zip/Postal Code: 97357
  • País: México

Detalles

Actualizado en diciembre 11, 2025 En 3:57 pm
  • ID de la propiedad 137
  • Precio $74,500.00
  • Tamaño de la propiedad 560 m2 m²
  • Área de terreno 800 m2 m²
  • Tipo de propiedad Nave industrial RENTA
  • Estado de propiedad En renta

Similares

Compare listings

Compare