Renta Nave Industrial 773 m² en Castelli Park Mérida, Yucatán
- $74,500.00
Renta Nave Industrial 773 m² en Castelli Park Mérida, Yucatán
- $74,500.00
Descripción
Nave industrial en Mérida disponible para renta, lista para operar en diciembre con todos los permisos en regla. Ubicada en Castelli Park, el parque industrial con acceso inmediato al Periférico y al Anillo Vial Metropolitano, además de una conexión estratégica con los principales nodos logísticos del sureste: Puerto Progreso, Tren Maya y Aeropuerto Internacional de Mérida.
Nave configurable con posibilidad de integrar oficinas ejecutivas, sistemas contra incendio y CCTV, ideal para uso de almacenamiento, distribución o logística.
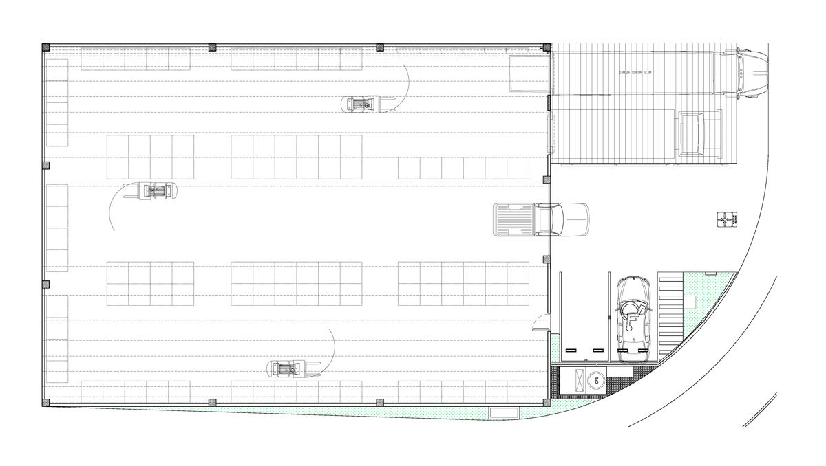
Características de la nave:
- 773.20 m2 terreno privado
- 560 m2 techados
- 213.20 m2 patios de maniobras y andenes
- Altura máxima 10 m
- 2 cajones de estacionamiento independientes para vehículos
- 2 andenes para carga y descarga independientes en cada nave
- Rampa para vehículos ligeros y pesados
- Pisos MR de alta resistencia
- Servicios independientes por nave (agua, acometida eléctrica en tres fases, fibra óptica)
- Patios de maniobras con posibilidad de cerca perimetral
- Oficinas con comedor y núcleos sanitarios (opcional)
- Cortinas enrollables mecánicas
Beneficios del parque:
- Ecotecnologías
- Urbanización de primer nivel
- Control de acceso
- Vigilancia 24/7
- Vialidades con asfalto
- Iluminación urbana solar
- Drenaje pluvial (Recarga de mantos acuíferos)
- Fibra óptica
- Red de agua potable
- Hotel operativo
En Castelli Park no solo adquieres una inversión estratégica, sino un modelo integral de soluciones ilimitadas.
Contáctanos hoy y agenda tu visita.
Dirección
Abrir en Google Maps-
Dirección: Complejo industrial Castelli Park 1, Tablaje 7010, Carretera Mérida – Tetiz, Km. 4
-
Ciudad: Mérida
-
Estado: Yucatán
-
Zip/Postal Code: 97357
-
País: México
Detalles
Actualizado en diciembre 11, 2025 En 3:58 pm-
ID de la propiedad 124
-
Precio $74,500.00
-
Tamaño de la propiedad 560 m2 m²
-
Área de terreno 773.20 m2 m²
-
Tipo de propiedad Nave industrial RENTA
-
Estado de propiedad En renta
Similares
Renta Nave Industrial 606 m² en Castelli Park Mérida, Yucatán
- $64,000.00
Renta Nave Industrial AAA 1020 m² en Castelli Park Mérida, Yucatán
- $109,000.00
Venta – Renta Nave Industrial AAA 2080 m² en Castelli Park Mérida, Yucatán
- $229,000.00
Renta Nave Industrial 800 m² en Castelli Park Mérida, Yucatán
- $74,500.00
- iaodnaki lqoapfbnf



















